欢迎访问湖北尚固官方网站!我们为您提供湖北轻钢别墅、农村自建房定制、四合院定制、装配式房屋定制等服务。

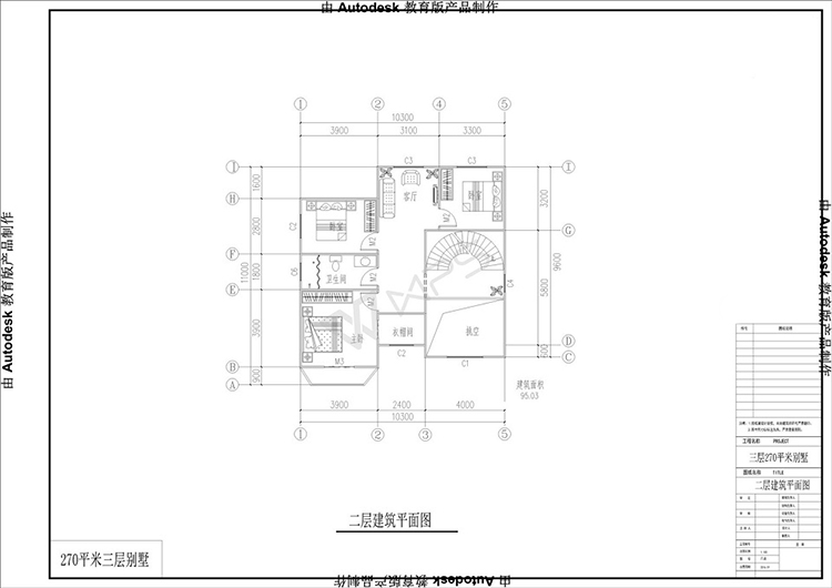
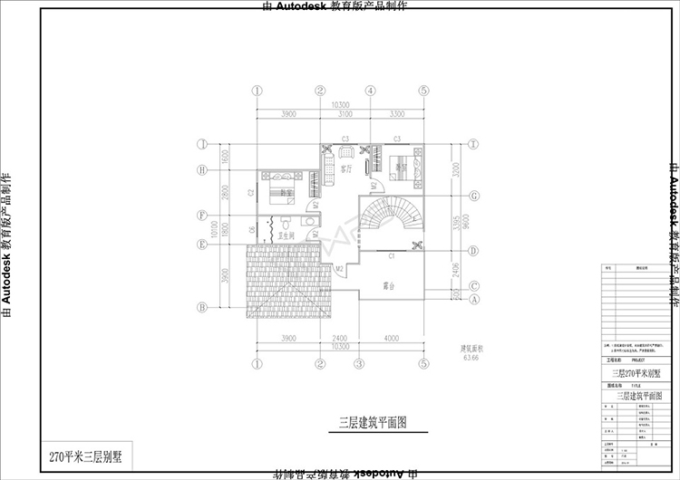
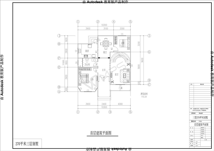
INDUSTRY INFORMATION三层户型

轻钢别墅系列之三层户型

来源:admin作者:湖北轻钢结构别墅定制厂家时间:2020-07-27阅读量: